Ein ehemaliges Hotel wird Wohngemeinschaft

Die Wohngemeinschaft liegt nicht zentral aber auch nicht außerhalb von Bordesholm. Das garantiert uns einen herrlichen Blick in die schöne geschwungene Landschaft des Bordesholmer Landes. Und gleichzeitig ist die Adresse leicht erreichbar.

Lage

Die Wohngemeinschaft liegt nicht zentral aber auch nicht außerhalb von Bordesholm. Das garantiert uns einen herrlichen Blick in die schöne geschwungene Landschaft des Bordesholmer Landes. Und gleichzeitig ist die Adresse leicht erreichbar.

Einblick in Ihr neues Zuhause

19 barrierefreie Einzimmer-Wohnungen bilden die Basis der Hausgemeinschaft. Sie sind zwischen 20 und 25 Quadratmeter groß. In allen Wohneinheiten verfügen Sie über eine separate Nasszelle und über Telefon- und Fernsehanschluss. 10 Appartements halten eine Pantryküche bereit, in der Sie sich zwischendurch versorgen können.

Wohngefühl Ansicht Technischer Grundriss

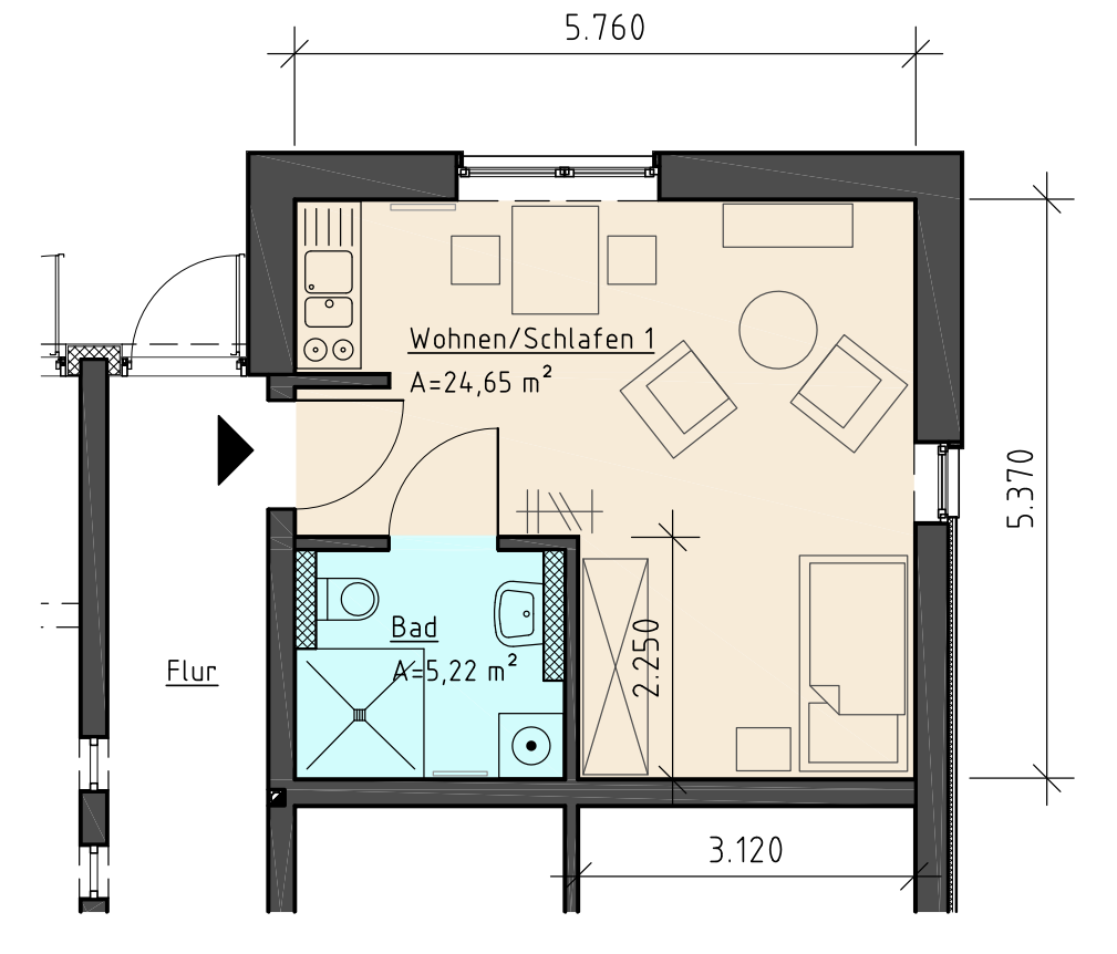
Beispiel: Typ „Gartenseite“

Helles Einzelzimmer

Unsere Standard-Apartments bieten auf ca. 24m² viel Platz zur persönlichen Entfaltung. Große Fenster sorgen für Tageslicht, der Schnitt erlaubt eine optische Trennung von Schlaf- und Wohnbereich.


📐24,65 m²

🌞Süd-Seite

♿Barrierefrei

Exposé als PDF laden

Selbständigkeit, wenn man möchte

Anders als in seiner Zeit als Hotel können Bewohnerinnen und Bewohner im Neuen Haidkrug heute vieles selbst machen und gestalten – nach eigener Lust und Laune. Die große, modern eingerichtete Küche lädt zum Kochen und Backen ein. Der freundlich-helle Gemeinschaftsraum bietet reichlich Platz für lebendiges Zusammenleben. Auf der Terrasse und im Garten
genießen Sie den schönen Ausblick und die frische Luft.

🛋️

Eigene Möbel

Bringen Sie Ihren Lieblingssessel einfach mit.

🚿

Privatbad

Jedes Zimmer verfügt über ein modernes, barrierefreies Bad.

📡

Top vernetzt

WLAN, Telefon & TV-Anschluss in jedem Zimmer.

🐕

Haustiere

Nach Absprache darf Ihr Vierbeiner mit einziehen.